The Hípico Piedra Grande is a new equestrian clubhouse and center located in the State of Mexico. Designed by Mexican architectural firm Studio RC, the clubhouse’s sleek pavilion and handsome stables sit on an eight-hectare site. Surrounded by lush forest, they provide a haven for horses and horse lovers alike.
When designing Hípico Piedra Grande, Studio RC endeavored to minimize any impact on the site, altering it as little as possible. The elegant structures combine a contemporary design language with traditional craftsmanship, and incorporate local materials such as wood, stone, and marble.
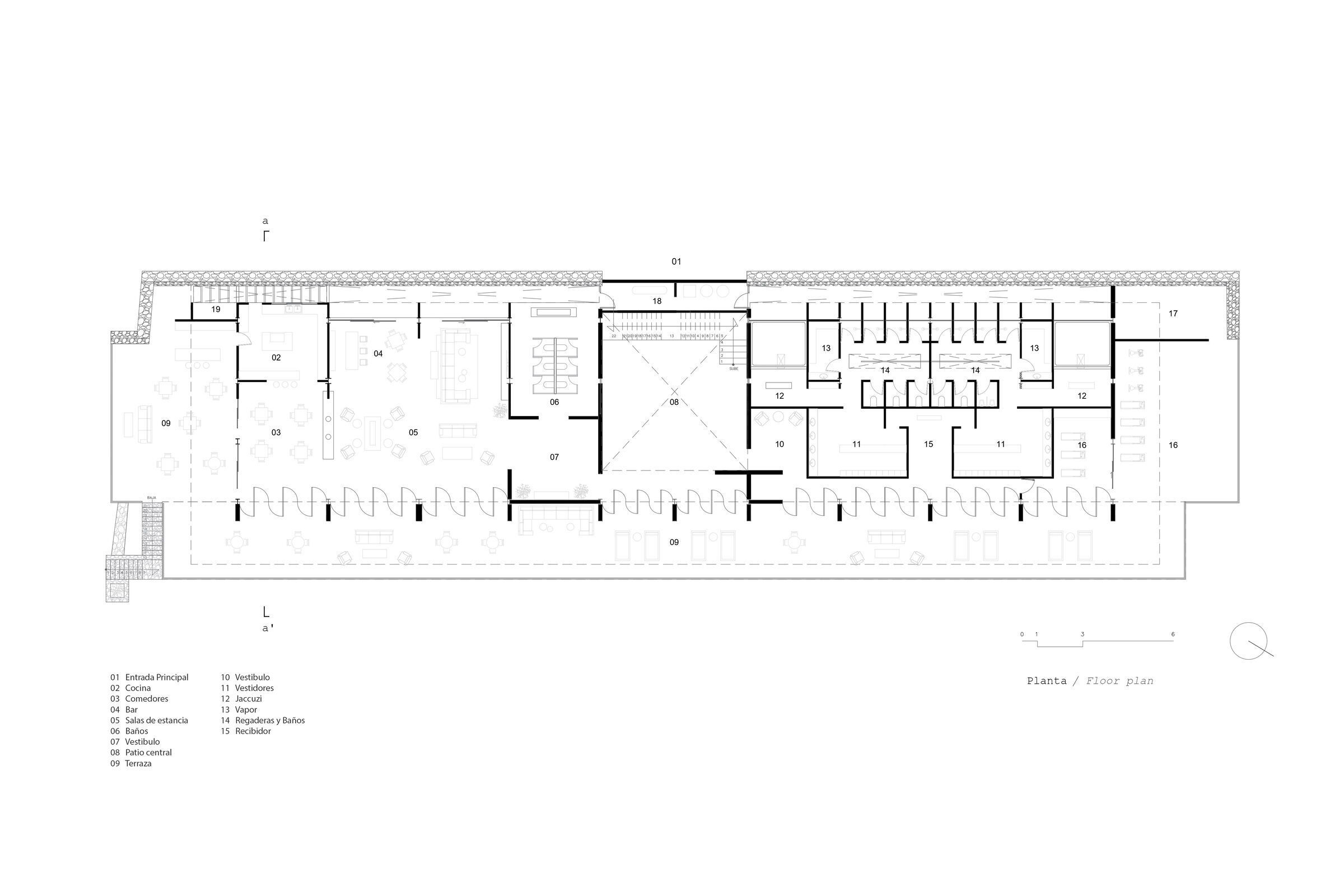
A place for the development of equestrian sports and equine care, the facilities include: a two-story stable building with 110 stalls, sand tracks, gravel paths, and riding routes that weave through the surrounding countryside. The stable building features a concrete facade that is punctuated with wooden shutters and sliding doors. It is divided into three separate modules: spread across two levels and linked by steel bridges, the site’s topography ensures level access to both floors. The third stable module is designed with a sawtooth roof and collects rainwater that can be reused.
The clubhouse pavilion sits on a hill above the stable building. “The distribution of the clubhouse is mainly governed by a central courtyard,” says Studio RC. Fostering an atmosphere of contemplation of the landscape, with views across the valley, the courtyard is “framed by stone walls that also divide and create a transition of access between the public and private spaces.”
Conceived as a simple building, the clubhouse is developed with a structural rhythm: “A system of structural modules based on steel columns and beams define the skeleton and shape of the building,” explains the architect. “[The idea is] that in the future the roof could be habitable for different events.” Concrete and stone walls divide and define a number of spaces throughout the clubhouse — alongside a textured local marble floor, they help to keep the building cool. As a means of tempering the hot climate, the architect notes: “we chose to separate the house from the stone retaining wall in order to have cross-ventilation during hot seasons and to take advantage of sunlight.”
The clubhouse terrace cantilevers out into the valley, its position designed to maximize the sweeping views. A design priority for the project, it offers a vantage point from which to observe and enjoy Hípico Piedra Grande’s equestrian activities.
















