Spanish design firm, In Out Studio, create an aesthetic clinic in Gran Canaria, Spain. The beauty clinic pays homage to textures, details and self-care in the best hands.
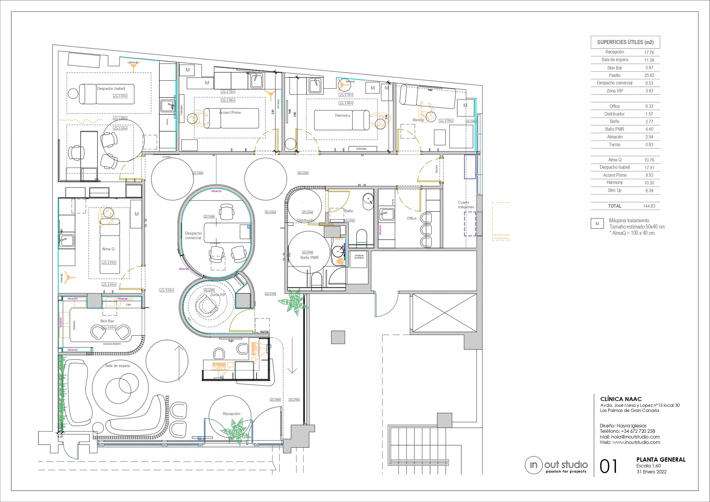
The clinic comprises a reception, waiting area, commercial office, treatment cabins, treatment rooms, toilets and staff area. Monochromatic colours induce a relaxing and sublime atmosphere while reflecting the brand identity.
The program is divided into four parts based on materiality and functionality. The entrance area is flooded with natural light and predominantly showcases wooden and smoke nude textures.
A bespoke marble counter with a corporeal and backlit logo frames the entrance and welcomes the users, directing them towards the waiting area. A handcrafted wooden lattice filters the view towards the two organic sofas designed by the studio while instilling a cosy atmosphere. Additionally, wooden lattices serve as room dividers and path delimiters.
Signage conveying the brand identity and values line the cabins accessed from the central corridor. tailor-made doors without handles and brass wall lights, flank each cabin. The interiors feature exquisite Cavalli wallpapers and lacquered furniture in corporate colour embellished with gold details.
Each space has special lighting designed to create different scenarios that can adapt to the various stages of each treatment. The clinic's striking central volume conceals two unexpected areas: the commercial office and the Golden VIP room. The commercial office stands out with an elliptical shape and powder pink colour, serving as the clinic's focal point. Additionally, the distinctive 3-metre-high curved sliding door was crafted by a local artisan.
Meanwhile, the Golden VIP room is a compact area designed for exclusive occasions. The explosive photocall created by the interaction of lighting, materials and colour is a spatial delight for visual hunters. Another imposing element is the 120cm diameter spiral-shaped fringed lamp designed by the firm's director, Nayra Iglesias.
A vestibule adorned by the lattice structure marks the entrance to the restroom, leading visitors into a serene interior. The corporate and brass-coloured doors open to reveal a meticulously crafted space that seamlessly blends classic and contemporary aesthetics.
Within this tranquil environment, two monochromatic areas feature exquisite marble textures and elegant brass accents. The clever combination of spot and indirect lighting adds a touch of sophistication, completing the overall design with refined elegance.
In conclusion, In Out Studio has created a space that exudes a timeless and calming ambience while stimulating the senses, encapsulating the essence of an aesthetic medicine centre.








