The family house in the village Kittsee is built on the basement of an old house. The original house was demolished due to unsatisfactory condition, but a beautiful cellar with a barrel vault remained, which mostly defined the design and of the new house and its layout.
The form of the house is clean, archetypal, sculptural with an emphasis on a balanced but still dynamic composition of openings accented by a"bite" in the entrance of the house. The purity of the shape is also helped by the ventilated white facade and roof from Equiton combined with wooden cladding from the garapa, which is also used for the terrace and street fencing.
The house has one floor and an attic in addition to the cellar.
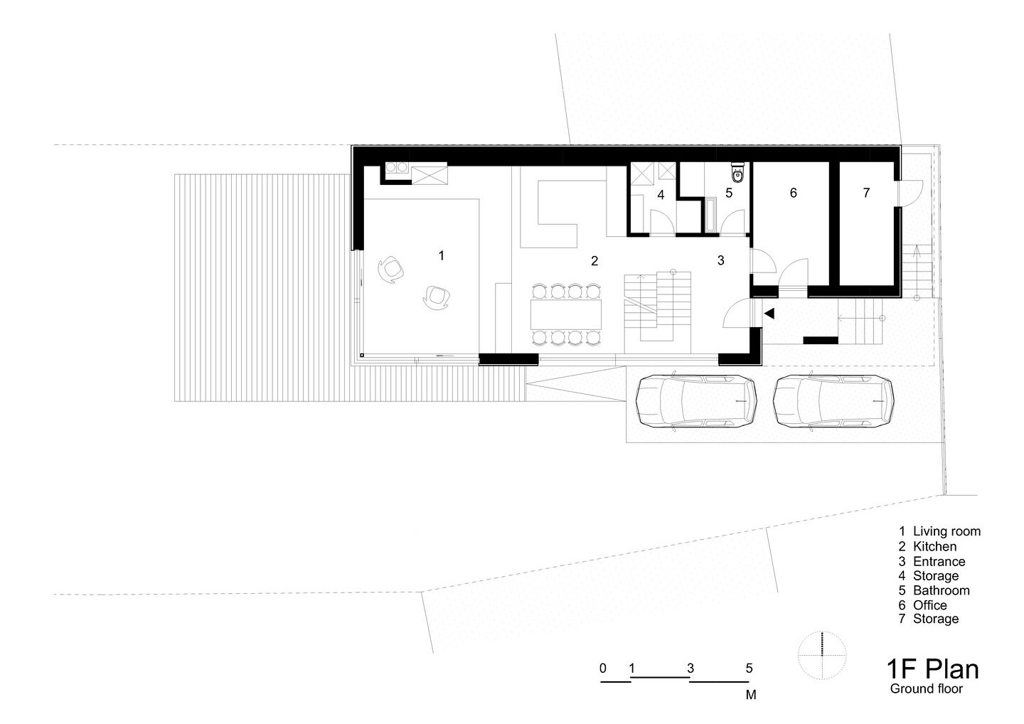
The ground floor is elevated about 1.5 m from the garden terrain, due to the cellar, while the living room is three steps lower. The entire bottom of the house, except for the office, is convienently opened and connected to a large wooden terrace and garden. It is the center of the house life, where the family is fully engaged.
The interior of the family house was defined by the preserved historical cellar of the previous house, therefore height elevations were created that allowed the interior to be play with. Seating is handled within this height difference. The strategically placed kitchen allows a view at the entire space and the garden at the same time. Cooking sometimes resembles the feeling of the captain's bridge. The space in the living room is opened up to the roof, which adds brightness and spaciousness. In addition to the corner window portal, the living room is enlightened by a smaller set of gable-level windows. These are oriented to the west and often offer incredibly colorful paintings of the sky.
Overall, the trajectories of movement in the house are designed to be rich of the views towards exterior at different angles. The ground floor premises are dedicated to social spaces, hygiene, dress room and storage accessible from the exterior. And there is also office with a library, which can be sealed off the noise of the family while still being accessible from the external staircase as well.
In the attic there is a simple night zone with a double bedroom and dress room, two children's bedrooms and a bathroom. The corridor in the northern part is also used as a long storage space. Apart from the new entrance section, the cellar is the original vaulted and the old plaster was removed. A new wall was laid down that forms a border between the old and the new part of the house. In addition a new brick floor was laid instead of former clay floor.
Due to the fact that the house is built from wooden CLT panels, apart from the northern accumulation reinforced concrete wall, these are recognized in the interior design of a large part of the house. This adds warm feelings and an emotion of well-being to the relatively minimalistic interior. The ground floor is stabilized by a black granite floor, which is also present in the staircase, kitchen worktop and a chest of drawers by the fireplace. The warmth of the wood is balanced by the white brick front wall in the northern part of the kitchen and the living room. Wood is also recognized in the attic, this time in combination with a black carpet and white walls. CLT panels were also used as material for some furniture pieces.
