Architectural Drawings

Filters

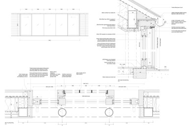
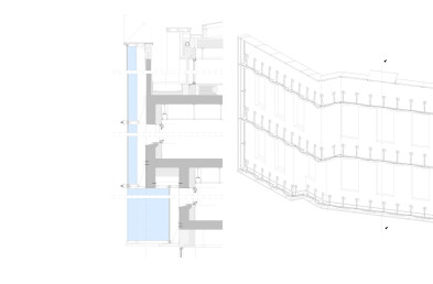
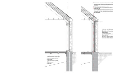
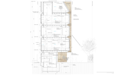
Explore the world's largest online Architectural Drawings Guide and discover drawings from buildings all over the world. Learn from other architects how they designed their plans, sections and details. And build on their ideas when you materialize your own project.